Promotion Immobilière
Promotions
Vente - Location
Ventes - Locations
Rénovation
Rénovation

Charmant attique avec mezzanine et terrasse

Ref : DGLFATJS14 Partager sur :
Le Grand-Saconnex
appartement
132 m²
4 pièces

Le Grand-Saconnex, Appartement à vendre 132 m² 4 pièces

Charmant attique avec mezzanine! Venez visiter sans tarder ce charmant attique avec balcon et terrasse! Il est situé au cœur du Grand-Saconnex, proche de toutes les commodités et commerces. Cet appartement traversant avec mezzanine, offre une belle luminosité ainsi que de beaux volumes. Vous êtes...

Plus de détails
1 370 000 CHF

Les Caractéristiques

Appartement, 0 chambre, 132 m² - Le Grand-Saconnex

Charmant attique avec mezzanine!

Venez visiter sans tarder ce charmant attique avec balcon et terrasse!

Il est situé au cœur du Grand-Saconnex, proche de toutes les commodités et commerces.

Cet appartement traversant avec mezzanine, offre une belle luminosité ainsi que de beaux volumes.
Vous êtes à moins de 5 minutes de l’aéroport, de Palexpo, de l'école du Grand Saconnex, de l’autoroute et des organisations internationales.

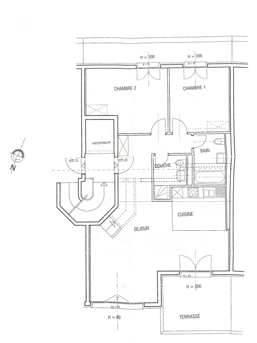
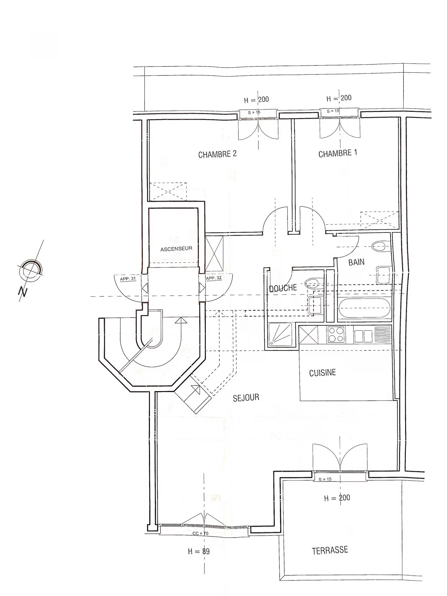
L'appartement offre à l'étage de 95m2 un hall avec rangement, un lumineux séjour ouvert sur la cuisine entièrement aménagée.
Le séjour est ouvert sur une agréable terrasse de 12m2.
Un escalier donne accès à la spacieuse mezzanine de 57m2 au sol, avec velux, pouvant être utilisée selon les souhaits.

Coté nuit: 2 spacieuses chambres, les deux avec accès au balcon avec vue sur le Jura, une salle de bains avec baignoire et un wc visiteurs avec lavabo et avec espace pour la colonne de lavage.

Ce charmant attique, est vendu avec une cave et une place de parc en sous-sol incluses dans le prix.

Votre Contact

Daniela GHIANDAI

+41 76 416 04 01

Catégorie
Attique
Référence
DGLFATJS14
Surface habitable
132 m²
Nombre de pièce(s)
4
Nombre de WC
2
Type de chauffage
Gaz
Nous respectons votre vie privée
Ce site utilise des cookies pour garantir la meilleure expérience de navigation.
Accepter
Refuser