Promotion Immobilière
Promotions
Vente - Location
Ventes - Locations
Rénovation
Rénovation

Charmant attique avec superbe vue, box

Ref : DGCER09 Partager sur :
Perly-Certoux
appartement
94 m²
4 pièces
5000 m²

Perly-Certoux, Appartement à vendre 94 m² 4 pièces

En Exclusivité: CASATAX possible! Situé dans une charmante petite résidence très bien entretenue, les façades ont été rénovées l'année passée, ce lumineux attique vous charmera dès votre entrée. Atypique et sur des demis niveaux, l'appartement offre un  lumineux salon avec cheminée, une charmante mezzanine...

Plus de détails
990 000 CHF

Les Caractéristiques

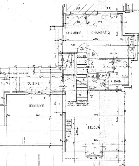
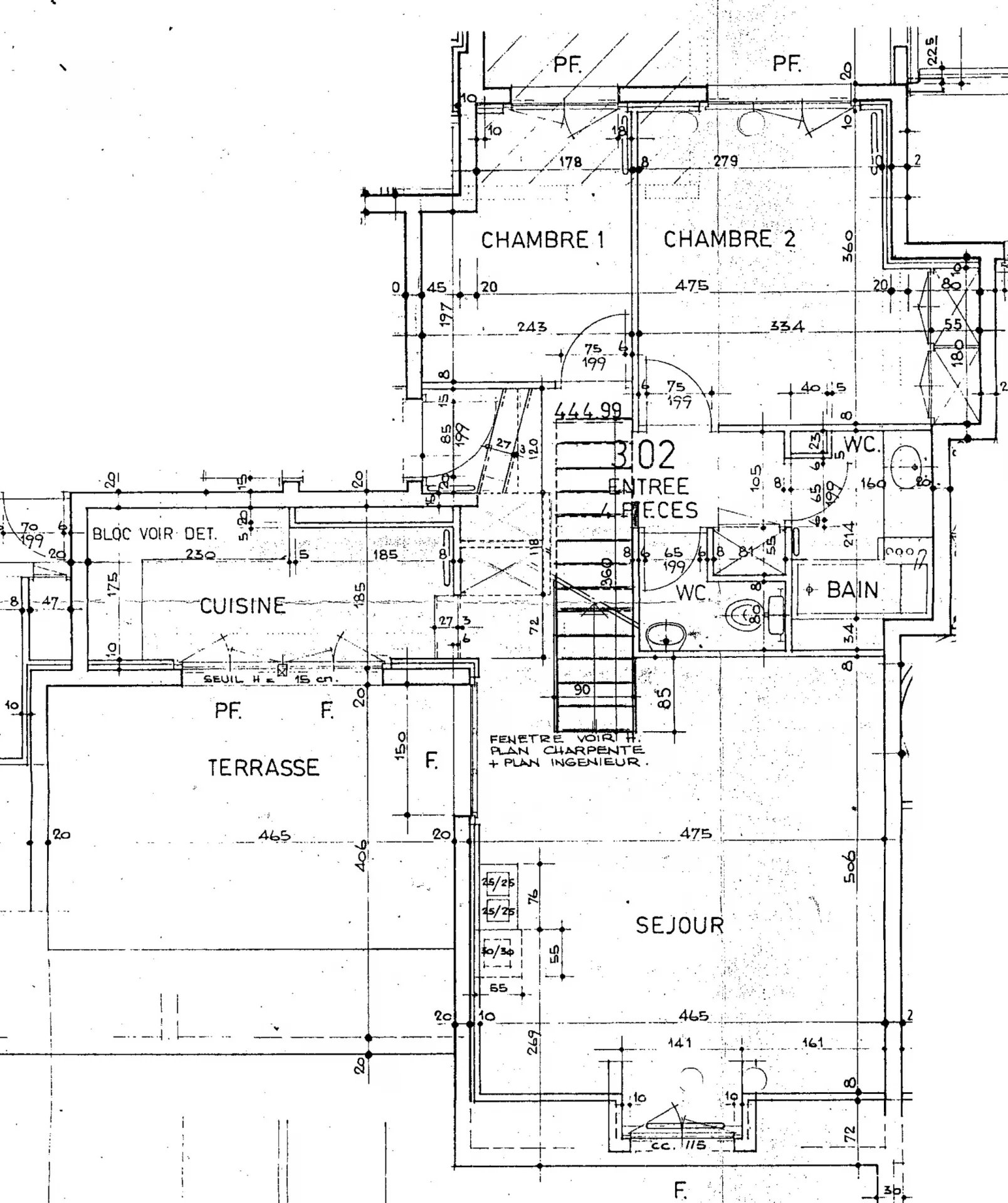
Appartement, 0 chambre, 94 m² - Perly-Certoux

En Exclusivité:
CASATAX possible!
Situé dans une charmante petite résidence très bien entretenue, les façades ont été rénovées l'année passée, ce lumineux attique vous charmera dès votre entrée.

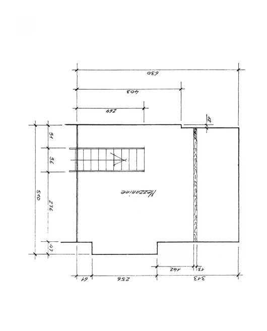
Atypique et sur des demis niveaux, l'appartement offre un  lumineux salon avec cheminée, une charmante mezzanine avec velux, une cuisine entièrement rénovée en 2017 avec accès à la superbe terrasse profitant d'une magnifique vue dégagée.

Côté nuit, une chambrette avec des armoires, une chambre avec douche. Ces 2 pièces on accès au balcon profitant d'une agréable vue sur la verdure.
Une salle de bains ainsi qu'un wc séparé avec lavabo complètent l'appartement qui offre 78m2 à l'étage et environ 16m2 pour la mezzanine.

Ce charmant attique traversant est vendu avec un box de 20m2 ainsi qu'une cave et un 2ème local/dépôt de 20m2 inclus dans le prix.
Une remise aux gouts du jour de la salle de bain et du wc, transformera cet appartement en un superbe objet.

Un magnifique  parc d'environ 5'000 m2 est à disposition des copropriétaires et de places pour les visiteurs agrémentent la copropriété. 

Objet à visiter sans tarder!

Votre Contact

Daniela GHIANDAI

+41 76 416 04 01

Catégorie
Attique
Référence
DGCER09
Surface habitable
94 m²
Surface terrain
5000 m²
Niveau
2ème
Nombre de pièce(s)
4
Nombre de WC
1
Type de chauffage
Fioul / Mazout
Nous respectons votre vie privée
Ce site utilise des cookies pour garantir la meilleure expérience de navigation.
Accepter
Refuser