Promotion Immobilière
Promotions
Vente - Location
Ventes - Locations
Rénovation
Rénovation

Lumineuse maison en pignon

Ref : LFDGMI29 Partager sur :
Mies
maison
130 m²
4.5 pièces
200 m²

Mies, Maison à vendre 130 m² 4.5 pièces

Venez visiter sans attendre cette lumineuse maison située dans un quartier résidentiel proche de toutes les commodités, des transports et des Organisations internationales. Construite en 2002, elle est en très bon état d'entretien et est prête à accueillir ses nouveaux propriétaires.  Elle se répartit...

Plus de détails
1 710 000 CHF

Les Caractéristiques

Maison, 0 chambre, 130 m² - Mies

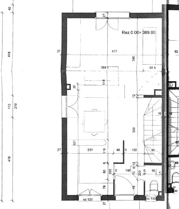
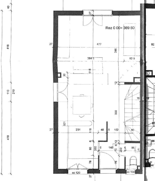
Venez visiter sans attendre cette lumineuse maison située dans un quartier résidentiel proche de toutes les commodités, des transports et des Organisations internationales. Construite en 2002, elle est en très bon état d'entretien et est prête à accueillir ses nouveaux propriétaires.  Elle se répartit sur 3 niveaux ainsi qu'un sous-sol chauffé et aménagé. 

Elle se distribue ainsi : 

Au rez-de-chaussée vous trouverez un lumineux séjour/salle à manger avec cheminée, orienté sud-ouest avec accès à la terrasse et au jardin entièrement plat et clôturé. La cuisine ouverte est entièrement aménagée et équipée d'électroménagers de la marque De-Dietrich. 
Un wc visiteurs avec lavabo et fenêtre complète ce niveau. 

La partie nuit au premier étage offre 2 belles chambres. Une spacieuse chambre parentale de 20m2 avec une grande armoire sur mesure bénéficie de sa salle de bains privative avec baignoire. La seconde chambre de 12 m2 profite elle aussi d'une armoire sur mesure. Une salle de douche avec fenêtre complète l'étage. 

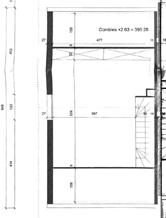
Sous les combles, une spacieuse et lumineuse pièce de 28m2 avec hublot et velux est actuellement aménagée en 3ème chambre.

Au sous-sol, chauffé et excavé avec une fenêtre saut-de loup, vous trouverez une belle pièce polyvalente pouvant être utilisé comme chambre d'amis, le local technique et la buanderie. 

Cette belle maison est vendue avec 2 places de parc extérieures.

N'hésitez pas à me contacter pour plus d'informations et pour organiser une visite.

Votre Contact

Laure FAVRE

+41 78 815 82 50

Catégorie
Maison
Référence
LFDGMI29
Surface habitable
130 m²
Surface terrain
200 m²
Nombre de pièce(s)
4.5
Nombre de WC
3
Type de chauffage
Fioul / Mazout
Nous respectons votre vie privée
Ce site utilise des cookies pour garantir la meilleure expérience de navigation.
Accepter
Refuser