Promotion Immobilière
Promotions
Vente - Location
Ventes - Locations
Rénovation
Rénovation

Lumineuse maison Minergie 4 chambres

Ref : LFDGGENT62 Partager sur :
Genthod
maison
172 m²
6.5 pièces
432 m²

Genthod, Maison à vendre 172 m² 6.5 pièces

Coup de coeur assuré ! Baignée de lumière, cette superbe maison contigüe d'une surface habitable de 172m2 bénéficie de généreux volumes. Située dans un quartier résidentiel, proche de l'école et des transports publics, c'est le bien idéal pour une famille. En parfait état d'entretien, elle est prête...

Plus de détails
1 890 000 CHF

Les Caractéristiques

Maison, 0 chambre, 172 m² - Genthod

Coup de coeur assuré !
Baignée de lumière, cette superbe maison contigüe d'une surface habitable de 172m2 bénéficie de généreux volumes. Située dans un quartier résidentiel, proche de l'école et des transports publics, c'est le bien idéal pour une famille. En parfait état d'entretien, elle est prête à recevoir ses nouveaux propriétaires. 

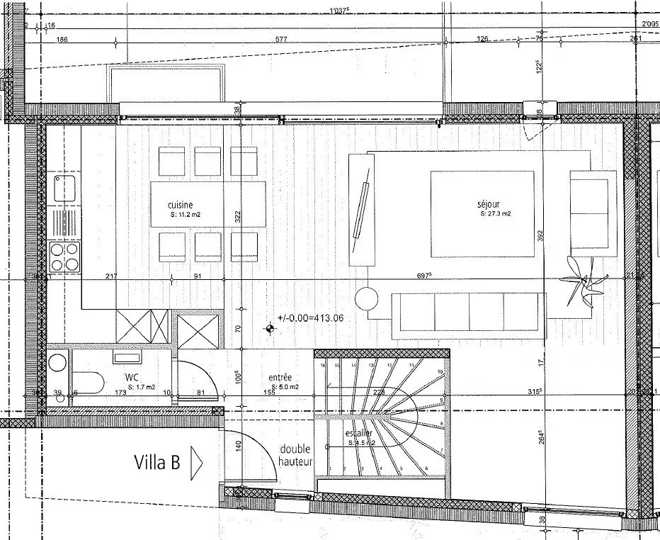
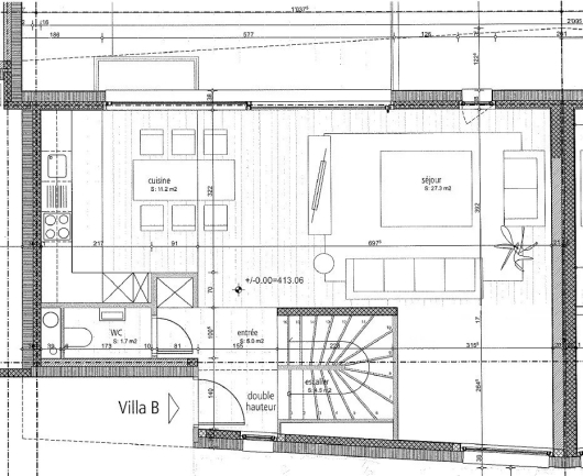
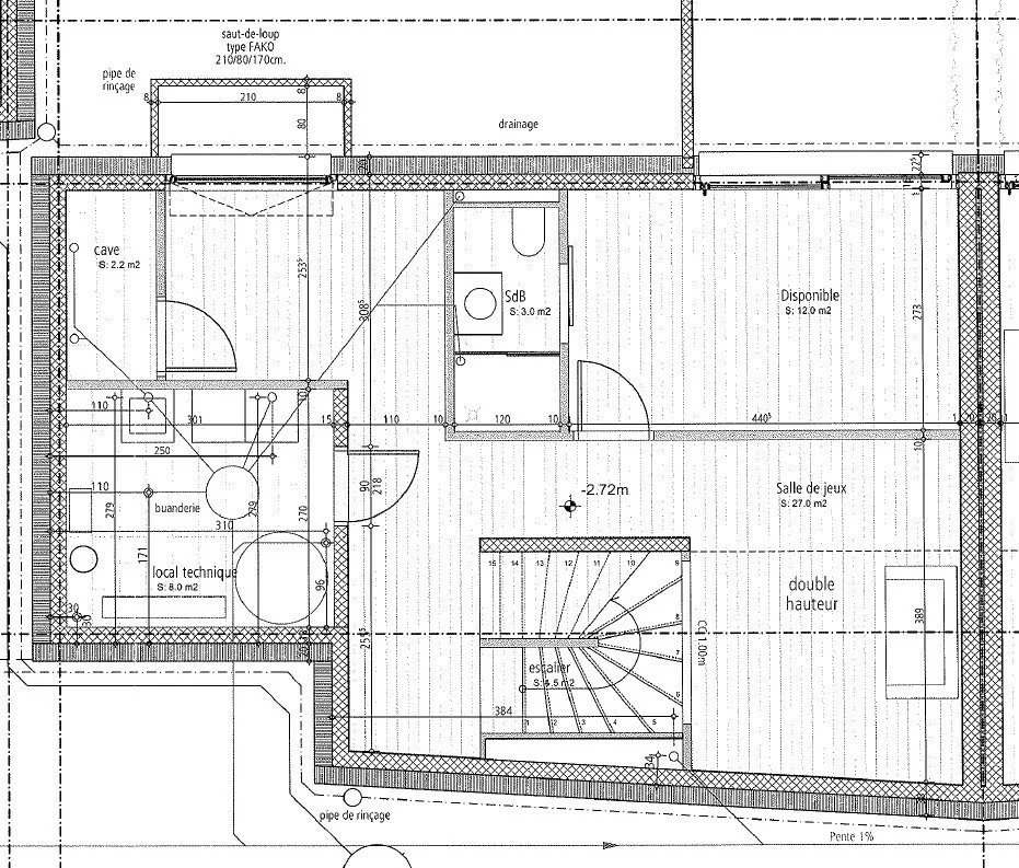
Erigée sur 86m2 au sol, la maison offre, au rez, un superbe espace salon-salle à manger ouvert sur la cuisine entièrement aménagée avec des grandes baies vitrées donnant accès à la terrasse et au jardin clôturé offrant une belle intimité. Ce niveau est complété par un wc visiteurs avec lavabo. L'entrée avec armoire dessert l'étage et le sous-sol.

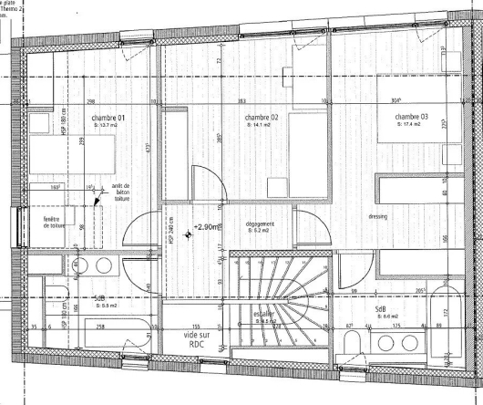
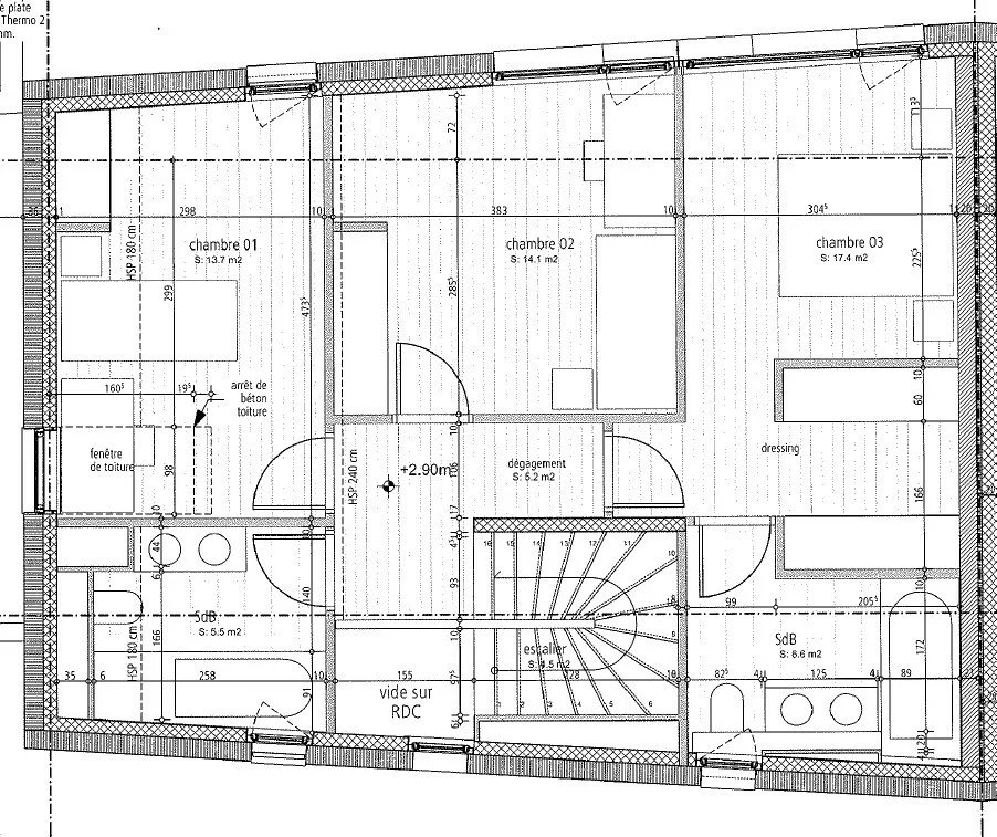
A l'étage, nous retrouvons une spacieuse chambre parentale offrant une vue sur le jardin, profitant d'une très grande hauteur sous plafond, et de sa salle de bains en suite avec baignoire, double lavabo et fenêtre. Deux autres chambres ainsi qu'une salle de bains avec baignoire et fenêtre complètent l'étage.

Au sous-sol, chauffé et aménagé, on trouve une agréable chambre avec une parois entièrement vitrée avec vue sur le coteau du jardin, une salle de bains avec douche et une pièce pouvant être aménagée selon les souhaits. Une cave et le local technique avec espace buanderie s'ajoutent à ce niveau.

Cette superbe maison est dotée du label Minergie et HPE avec des panneaux photovoltaïques et solaires.   

Un double garage de 42m2 et deux places extérieures agrémentent cette superbe maison à visiter sans tarder! 
Un portail automatique sécurise l'accès à la copropriété.

N'hésitez pas à me contacter pour plus d'informations et pour organiser une visite.

Votre Contact

Laure FAVRE

+41 78 815 82 50

Catégorie
Villa
Référence
LFDGGENT62
Surface habitable
172 m²
Surface terrain
432 m²
Nombre de pièce(s)
6.5
Nombre de WC
1
Type de chauffage
Gaz
Nous respectons votre vie privée
Ce site utilise des cookies pour garantir la meilleure expérience de navigation.
Accepter
Refuser