Promotion Immobilière
Promotions
Vente - Location
Ventes - Locations
Rénovation
Rénovation

Superbe maison individuelle

Ref : LFCHEN18 Partager sur :
Chêne-Bougeries
maison
198 m²
6 pièces
728 m²

Chêne-Bougeries, Maison à vendre 198 m² 6 pièces

Venez visiter sans plus attendre cette superbe maison individuelle d'environ 198m2 habitables située dans le quartier recherché de la Gradelle à proximité de toutes les commodités, des écoles, des transports publics ainsi que de la voie verte. Au bout d'un chemin sans issue, elle profite d'un environnement...

Plus de détails
3 100 000 CHF

Les Caractéristiques

Maison, 0 chambre, 198 m² - Chêne-Bougeries

Venez visiter sans plus attendre cette superbe maison individuelle d'environ 198m2 habitables située dans le quartier recherché de la Gradelle à proximité de toutes les commodités, des écoles, des transports publics ainsi que de la voie verte. Au bout d'un chemin sans issue, elle profite d'un environnement calme et verdoyant.

Baignée de lumière, cette superbe maison d'architecte construite en 2009 se distribue sur deux niveaux et offre 344m2 utiles. Ses grandes baies vitrées, ses puits de lumière ainsi que ses belles hauteurs sous plafonds lui confèrent volumes et luminosité. 

Elle se compose ainsi : 
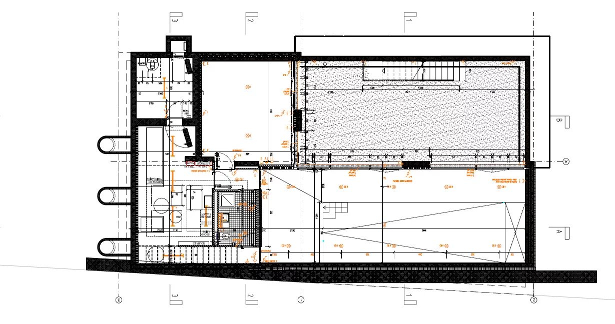
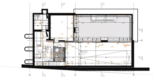
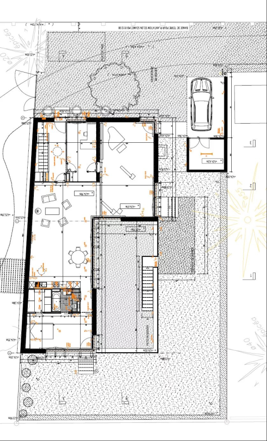
Au rez-de-chaussée, vous serez séduits par la vaste pièce de vie de plus de 80 m2, en forme de "S", ouverte sur la cuisine entièrement équipée et aménagée. La grande chambre parentale de 17m2 avec sa salle de bains privative et son dressing  profite de beaucoup d’intimité et a accès au jardin. Un bureau de 13m2 pouvant être transformé en chambre complète le rez.

Au rez inférieur, totalement excavé et avec entrée indépendante, vous découvrirez une spacieuse chambre de 22m2 avec accès à un patio, une salle de bains avec douche ainsi qu'une superbe piscine chauffée avec nage à contre-courant. Le local technique avec coin buanderie et un abri complètent ce niveau.

Cette superbe maison profite de chauffage au sol, de triples vitrages, de stores électriques et est équipée de panneaux photovoltaïques en toiture. 

Un joli jardin clôturé ainsi qu'un couvert à voiture et des places extérieures viennent compléter l’ensemble.

Les volumes de cette belle maison pourraient être modulés selon vos besoins. 

N'hésitez pas à me contacter pour plus d'informations et pour organiser une visite. 

Votre Contact

Laure FAVRE

+41 78 815 82 50

Catégorie
Maison
Référence
LFCHEN18
Surface habitable
198 m²
Surface terrain
728 m²
Nombre de pièce(s)
6
Type de chauffage
Pompe à chaleur
Nous respectons votre vie privée
Ce site utilise des cookies pour garantir la meilleure expérience de navigation.
Accepter
Refuser