Development
Development
Sales - Rental
Sales - Rental
Renovation
Renovation
Buy
Sold

Superb semi-detached house

Ref : BELTU31 Share on :
Bellevue
house
8 rooms
274 m²

Bellevue, House for sale 0 m² 8 rooms

Come visit this beautiful house bathed in light and enjoying very beautiful volumes. Located in a charming condominium enjoying beautiful wooded areas and a swimming pool, this house is the ideal property for a family. It offers the ground floor a large living room with fireplace opening onto a veranda,...

More details
2 100 000 CHF

The Specifications

House, 0 bedroom, 0 m², - Bellevue

Come visit this beautiful house bathed in light and enjoying very beautiful volumes.

Located in a charming condominium enjoying beautiful wooded areas and a swimming pool, this house is the ideal property for a family.

It offers the ground floor a large living room with fireplace opening onto a veranda, offering a fully glazed walls, a fully equipped kitchen with quality appliances, an office and a toilet with sink. From the living room there is access to the terrace and the garden. A small gate gives access to the condominium park which offers a play area surrounded by trees and a swimming pool.
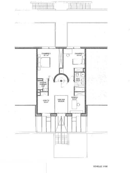
Upstairs, 2 spacious bedrooms with bathroom preceded by 2 living lofts.
Under the eaves, a spacious room with velux can be separated into 2.
The lower floor offers 2 garages, the technical room, the cellar, the laundry and a small apartment with 2 bedrooms, a bathroom, a kitchen and living space with access to the garden.

Do not hesitate, contact me to arrange a visit!

your contact

Daniela GHIANDAI

+41 76 416 04 01

Category
Semi-detached house
Reference
BELTU31
Land surface
274 m²
Number of rooms
8
Heating Type
Gas
We respect your privacy
This site uses cookies to ensure the best browsing experience.
Accept
Decline